Véranie Jeune
Représentations d’architecture
conventionnels
diagrammes
graphisme
illustrations
images
maquettes
conventionnels
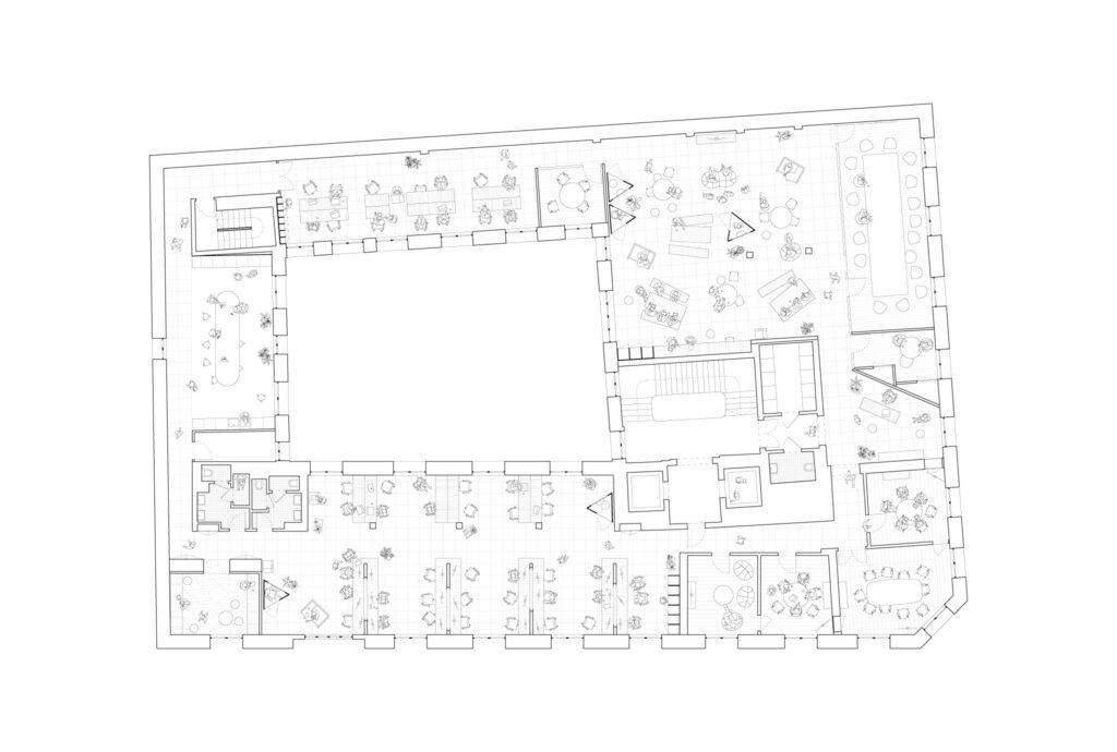
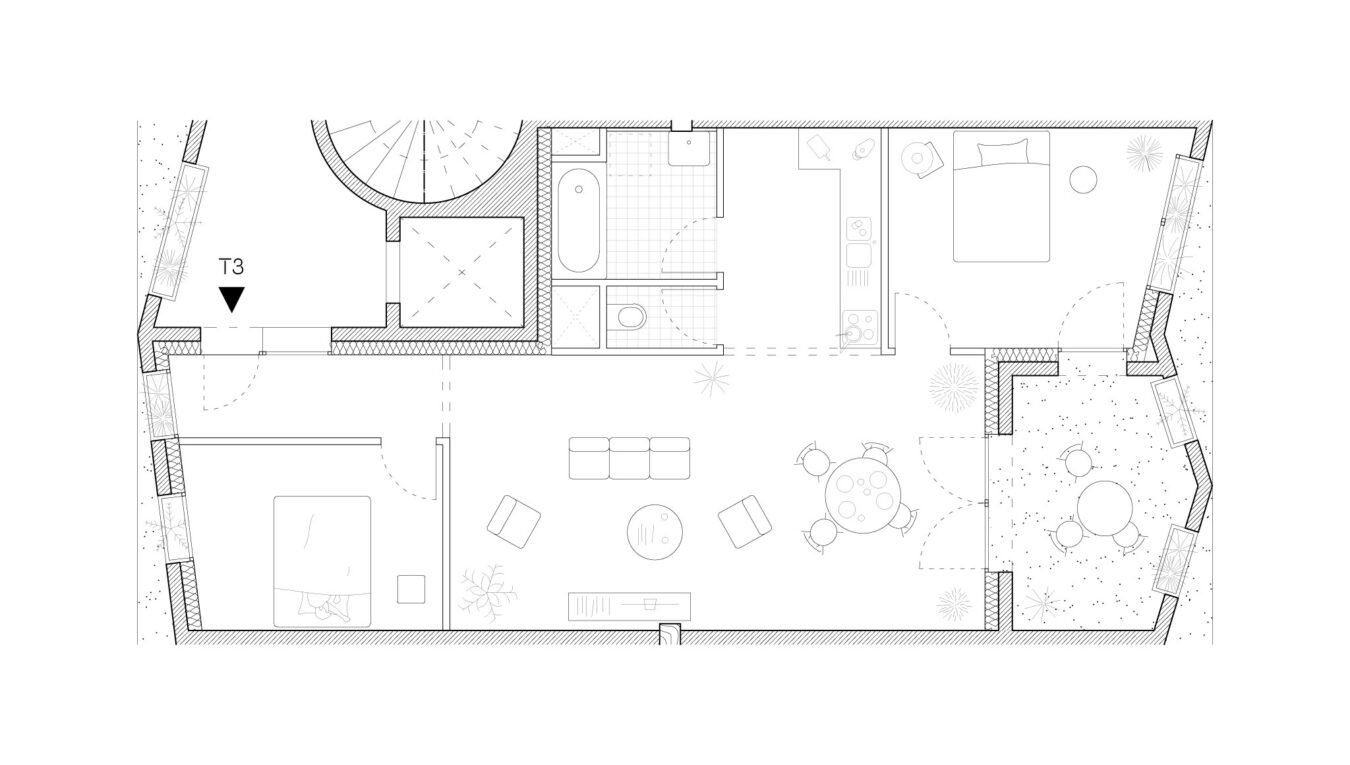
plans, élévations et coupes
[ ZzZzz ]